Брокер
ЕвгенияЛичен телефон: 0884932363
Посетена 226 пътиПубликувана в 08:33 на 01 Декември 2025
Обща информация
Квадратура76 m2
Етаж3-ти
ГАЗНЕ
ТEЦДА
Допълнителна информация
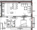
Продавам просторен двустаен апартамент на трети етаж в представителна новопостроена сграда в идеален център на София на 200 м. от Министерски съвет, в тиха улица. Изложение изток. Застроена площ 62 кв. м. , с общи части 76 кв. м. Състои се от просторна дневна с кухненски бокс 33 кв. м. , спалня, баня с тоалетна и тераса. Издава се на шпакловка и замазка. Възможност за закупуване на подземно паркомясто.
Евгения Станева - тел. 0884 932363
Особености
Асансьор • С паркинг • Контрол на достъпа • Тухла
Страница на обявата
Брокер
ЕвгенияЛичен телефон: 0884932363








