Брокер
Обща информация
Допълнителна информация
АКТ 16! ДИРЕКТНО ОТ ИНВЕСТИТОР!
?Билдинг Бокс има удоволствието да Ви представи ново предложение - дом заобиколен от природа, спокойствие и простор.
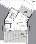
Къща със самостоятелен двор от 196 кв. м и с площ от 190, 90 кв. м. Първото ниво се състои от: антре, склад, голяма дневна с трапезария и кухненски бокс, тоалетна и прекрасна веранда. Второто ниво: три самостоятелни спални, към една от които има дрешник и тераса, и две бани с тоалетни. На третото ниво: open space помещение с баня и тоалетна, което е подходящо за офис или четвърта спалня. Пред къщата има обособени две паркоместа.
Комплекс ' ОСТА Хоум' се състои от общо шест къщи, като всички са с по три етажа. Основното изложение на къщите е изток-запад.
Къщите са изпълнени с висок клас материали. Във всяка от къщите има изградено подово отопление, а спрямо предпочитанията на клиента, ще може да се отоплява на ток или пелети.
В комплекса е с монтирана пречиствателна станция.
Билдинг Бокс предоставя безплатна консултация и кредитно съдействие при финансиране на избрания от Вас имот.
Оферта 8781









