Продава 2-СТАЕН, град Пловдив, Тракия ID 60825550

69 800 €136 516.93 лв.Цената е с включено ДДС

Агенция

ТРИВИУМ ЕСТЕЙТ, град Пловдив
ТРИВИУМ ЕСТЕЙТград Пловдив бул.Христо Ботев 92Б - Рилон Център
Посетена 86 пътиПубликувана в 10:50 на 03 Септември 2025

Обща информация

Квадратура70 m2
Етаж6-ти

Допълнителна информация

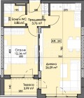
Агенция TRIVIUM ESTATE има удоволствието да Ви предложи за продажба двустаен апартамент в кв. Тракия .

Имотът е с обща площ от 70. 25 кв. м и се състои от:

Антре;
Дневна;
Спалня;
Санитарен възел;
Тераса
Изложение: Юг

Апартаментът е реализиран с висококачествени енергийно ефективни материали и е ситуиран на етаж 6 от 10 в сграда, която съчетава енергоефективност и най-високо качество на изпълнение.

За повече информация, или оглед се обадете на посочения в обявата телефон за контакт.

TRIVIUM ESTATE предлага безплатно съдействие при кредитиране.

Отговорен консултант: Невена Прайс

Реф. номер: 897597

Особености

Асансьор • Тухла

Страница на обявата

Агенция

ТРИВИУМ ЕСТЕЙТ, град Пловдив
ТРИВИУМ ЕСТЕЙТград Пловдив бул.Христо Ботев 92Б - Рилон Център

Споделяне

Преглeд на обявите по населени места: