Брокер
ГеновеваЛичен телефон: +359879401333
Посетена 31 пътиПубликувана в 09:48 на 27 Декември 2025
Обща информация
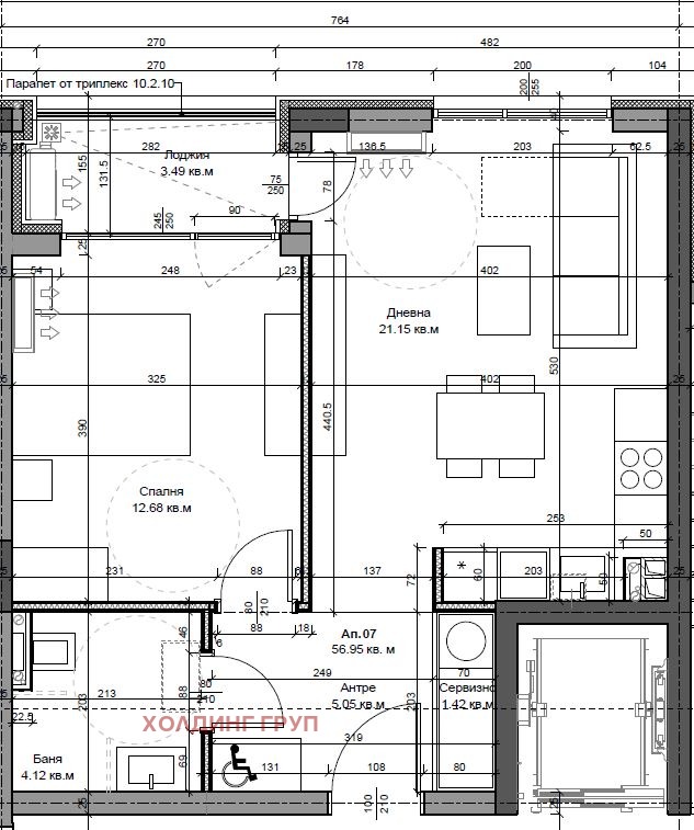
Квадратура63 m2
Етаж2-ри
Допълнителна информация
HOLDING GROUP real estate представя на Вашето внимание чудесен двустаен апартамент с площ от62, 66 кв. м. в новострояща се сграда с А 14 в кв. Галата. Намира се в комплекс от затворен тип, състоящ се от пет еднотипни сгради, с много зеленина и простор, морска панорама. Апартаментът е ситуиран на етаж 2 от 6 етажна сграда с асансьор. Състои се от коридор, просторен дневен тракт /21, 15 кв. м/. , спалня / 12, 68 кв. м. /, баня с тоалетна, сервизно помещение и лоджия. В комплекса е изграден и МОЛ, в който ще има супермаркет, сладкарница, аптека, фитнес и др. Достъпът до имота е от главен път, изцяло асфалтов. За подробности и огледи, моля да се обадите на посоченият телефонен номер и да цитирате кода на офертата.
Код на офертата 8601
Особености
Асансьор • Контрол на достъпа • В затворен комплекс • Тухла
Страница на обявата
Брокер
ГеновеваЛичен телефон: +359879401333



