Продава ВИЛА, област Стара Загора, с. Малка Верея ID 60891458
Обща информация
Допълнителна информация
Вашият нов дом в с. Малка Верея - Директно от строителя!
✨ АКЦЕНТИ НА ИМОТА:
Пространство и уют: Двуетажна еднофамилна къща с голям самостоятелен двор (500 кв. м. ).
Гъвкавост: Перфектна както за основно жилище, така и за луксозно бягство през уикенда. 🥂
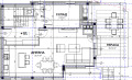
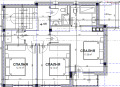
📐 РАЗПРЕДЕЛЕНИЕ:
🏠 Етаж 1 - Зона за споделяне: Огромна дневна с трапезария и кухня, от които излизате директно на веранда с барбекю зона 🍖 . Тук са още предверие, голям склад и санитарен възел.
🛌 Етаж 2 - Зона за релакс: 3 просторни спални (едната със собствена баня), обща тераса с панорама и допълнителен санитарен възел.
📦 Бонус: Подпокривно пространство за всички ваши идеи!
🏗 ️ БЕЗКОМПРОМИСНО КАЧЕСТВО: от 🧱 през 🌡 ️ та до 🔌 Използвани са само материали от най-висок клас, за да ви осигурим спокойствие и енергийна ефективност:
🚧 ЕТАП И ВЪЗМОЖНОСТИ:
Къщата е на прага на Акт 14, като финализирането е планирано за края на лятото. Издава се по БДС.
🛣 ️ ЛОКАЦИЯ:
Достъпът е по нов, удобен път. Мястото е тихо, в обкръжението на нови и модерни имоти.
💳 ГЪВКАВИ ПЛАЩАНИЯ: Предлагаме удобни лизингови схеми и разплащане спрямо вашия бюджет.
БЕЗ КОМИСИОННА! Цена с включен ДДС. 💰
📞 Свържете се с нас още днес, за да разгледате на място!




