Брокер
Кантора ОборищеЛичен телефон: 0882 121 488
Посетена 1 пътиПубликувана в 17:00 на 13 Ноември 2025
Обща информация
Квадратура100 m2
Етаж6-ти
ГАЗНЕ
ТEЦДА
Допълнителна информация
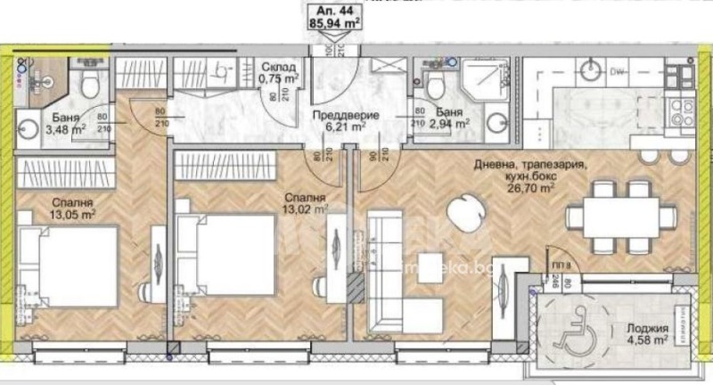
Функционален тристаен апартамент в жк ' ЛЮЛИН 8' !
Върху площ от 100 кв. м са разположени хол с трапезария и кухненски бокс (27 кв. м), две спални по 13 кв. м, две бани и югоизточна лоджия.
Изложения - ЮЗ.
Етаж 6 от 9.
Паркомясто 18500 евро.
' Люлин-8' или ' Люлин - център' е предпочитан за живеене и инвестиция район!
Отлична и изградена инфраструктура:
- МЕТРОСТАНЦИЯ ' Сливница'
- спирки на градски транспорт
- училища и детски градини
- множество магазини.
Модерна новострояща се сграда в жк ' ЛЮЛИН 8' .
Правилни форми и просторни помещения съответстващи на изисканите общи части!
Модерна сграда със съответстваща цена.
Метростанция.
Функционални разпределения.
Обади се сега и цитирай този код 675201
Особености
Асансьор • Тухла
Страница на обявата
Брокер
Кантора ОборищеЛичен телефон: 0882 121 488


