Брокер
Обща информация
Допълнителна информация
Имаме удоволствието да представим двустайно жилище на пети етаж в аристократична сграда, разположена на ул. Искър и Чумерна, непосредствено до СМГ. Местоположението е изключително удобно за желаещите да живеят в центъра на столицата и същевременно на тихо място, което носи духа на стара София, но и на съвременния градски облик. Сградата посреща с просторно фоайе, разполага с асансьор и красиви общи части, парапет от ковано желязо, настилки с мрамор и отлично проектирано разпределение.  
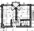
Имотът е с чиста площ от 40. 12 кв. м. и се състои се от дневна с трапезария и кухненски бокс, спалня, баня с тоалетна, коридор и балкон, на който се излиза и от двете стаи. Изложението на жилището е 'север/запад', като гледа към вътрешен двор на сградата. Предоставя тишина и спокойствие за обитателите си. 
Сградата е на етап Акт 15, в процес на реновация. Захранена е с ТЕЦ, но ще има и изводи за климатици. Жилищата се предават на шпакловка и замазка. 
Срок на завършване - март, 2026
Акт 16 - септември, 2026 
Код на оферта: 6666
За повече информация: +359 877 214 549










