Брокер
Обща информация
Допълнителна информация
Титан Пропъртис офис - Черни връх има удоволствието да Ви представи тристаен апартамент в новострояща се жилищна сграда в кв. Подуяне. В близост са разположени множество спирки на градския транспорт, търговски обекти, детски градини, училища, зони за отдих и спорт, както и метростанция 'Хаджи Димитър', която е на 380 м. пешеходно разстояние.
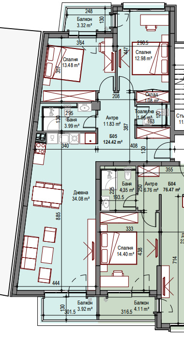
Апартамент Б05 е ситуиран на 2-ри жилищен етаж и разполага със застроена площ от 106. 02 кв. м. , разгърната по следния практичен начин: антре, дневна с трапезария и кухненски бокс, 2 спални, баня с тоалетна, отделна тоалетна, склад, тераси. Изложение: север/юг. Жилището се предлага на шпакловка и замазка, за да може Вашето въображение да го превърне в мечтания за Вас нов ДОМ!
Сградата е с издаден Акт 14 и ще бъде завършена през 2026г. За строителството се използват високо качество строителни материали, тухли Wienerberger, 10 см. EPS изолация на стените, покрива е топлоизолиран с XPS изолация 10 см. и двойно хидроизолиран, всички тераси също са хидроизолирани. Отопление: ТЕЦ, като има изводи за климатици във всяка стая и подово отопление в баните.
Фасадните стени са комбинация от полимерна мазилка и естествен камък, дограмата е с трислоен стъклопакет с К стъкло профил, блиндирани входни врати, звънчева, телефонна и видеодомофонна инсталации, мрежа за включване на кабелна телевизия и интернет. Общите части на сградата ще бъдат луксозно изпълнени и оборудвани с гранит, дървена ламперия и луксозен хидравличен асансьор. Има възможност за закупуване на паркоместа или гаражи на допълнителна цена.
За оглед на това и други атрактивни предложения, не се колебайте да ни потърсите на посочения телефон или да ни изпратите данните си чрез формата за запитване на сайта. Реф. номер:785



