Продава 2-СТАЕН, град София, Модерно предградие ID 61754172
Обща информация
Допълнителна информация
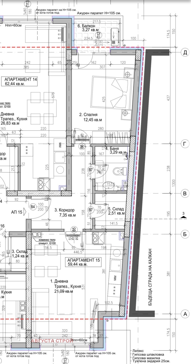
ДИРЕКТНО ОТ ИНВЕСТИТОР! БЕЗ КОМИСИОННА ОТ КУПУВАЧА! Доказана строителна фирма с десет построени сгради в София! Банково финансиране за клиенти с кредити! Прекрасен апартамент с изложение изток/запад на 4-ти етаж (от 6). Чиста площ 59, 44 кв. м , с общите части - 69, 74 кв. м. Едно уютно и спокойно убежище в зеления и динамично развиващ се квартал Модерно предградие! Градски дом с ваканционно усещане. Нарекохме новата ни сграда Вила Вилекула , както е наричала дома си героинята от детството ни Пипи Дългото чорапче.
Новоизградената улица Стефан Дуньов е широка и просторна.
Районът е с перфектна инфраструктура, развити транспортни връзки и бърз достъп по бул. Сливница и ул. Адам Мицкевич . Наблизо се намират много от големите супермаркети и магазини, има детски градини, училища. Най-близката станция на метрото е метростанция Сливница, започнало е изграждане на метростанция Модерно предградие .
Планиран акт 16 - до края на 2026 година. Изградени външни ВиК и Ел връзки!
Етап на строителството: Акт 14.
Отопление - ток.







