Брокер
Обща информация
Допълнителна информация
НОВА СГРАДА !!! РАЗСРОЧЕНО ПЛАЩАНЕ !!! ОТЛИЧНА ЛОКАЦИЯ !!! ИЗБОР НА АПАРТАМЕНТИ !!! ИЗБОР НА ЕТАЖИ !!! ВЪЗМОЖНОСТ ЗА ПАРКОМЯСТО !!!
Нова Хоум Ви предлага за продажба двустаен апартамент в новострояща се жилищна сграда с площ 66 кв. м. в спокойният за живеене квартал Виница.
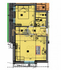
Жилището се състои от входно антре, дневен тракт с кухненски кът, спалня и баня с тоалетна.
Апартаментът ще бъде завършен по БДС с монтирана входна врата, изградени ВиК и ел. инсталации.
Към имота има възможност за закупуване на паркомясто.
Апаратментът е ситуиран в сграда с достъпна локация, на тихо и спокойно място и същевременно изключително комуникативно.
Имотът е подходящ както за живеене така и за инвестиция, поради непосредствената си близост до главни пътни артерии, автобусни спирки, големи супермаркети, детски градини и училища.
Нова Хоум съдейства на своите клиенти до нотариалното изповядване на сделката, за отпускане на кредит с преференциални условия към всички водещи банки на пазара, както и за ремонтни и довършителни дейности /завършване до ключ/ на преференциални цени.
За повече информация, коментари и огледи: Живко Желязков 0894 34 72 52 (телефон от 8:30 до 21:30), (viber и whatsapp +359894 34 72 52 денонощно).
За да разгледате още актуални оферти в гр. Варна, можете да посетите сайта на агенцията - www.novahome.bg



