Продава 2-СТАЕН, град Пловдив, Кършияка ID 61809446

95 595 €186 967.57 лв.Не се начислява ДДС

Агенция

ТОНИКО ИМОТИ , град Пловдив
ТОНИКО ИМОТИ град Пловдив ул.'Елиезер Калев' 21

Брокер

Христо Личен телефон: 0898 44 66 65, 0898 44 66 71 гр.Пловдив ул.'Иван Вазов' 60, ет.1
Посетена 163 пътиПубликувана в 12:32 на 24 Септември 2025

Обща информация

Квадратура63 m2
Етаж8-ми

Допълнителна информация

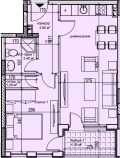
реф. 214364 'Тонико имоти' предлага за продажба двустаен апартамент в новопостроена сграда пред Акт 16 в 'Кършияка'. Жилището се намира в близост до 'Лекси', на осми етаж /не последен/, южно изложение и панорамна гледка към река Марица и града. Състои се от дневна с кухненски бокс, спалня, баня с тоалетна, входно антре, склад и чудесна тераса с излаз от двете помещения. Застроената площ е 52, 20 кв. м. и 62, 73 кв. м. с общите части. Всички помещения са просторни. Жилището се издава на шпакловка и замазка, ел. инсталация с контакти и ключове, ВиК на тапа, входна блиндирана врата от най-висок клас. На партерно ниво ще се помещават търговски обекти за всякакви нужди и удобство за собствениците. Изключително прецизно и луксозно изпълнение. Осигурени са 100 % подземни паркоместа на допълнителна цена. Комплексът е съчетание от модерна визия, уют, лукс и тишина. Плащането е разсрочено - на вноски по схема, договорена с инвеститора. Пусков срок -есен 2025 г.

Особености

Асансьор • С паркинг • Лизинг • Интернет връзка • Видео наблюдение • Контрол на достъпа • Охрана • Саниран • Възможност за дан. кредит • Тухла

Страница на обявата

Агенция

ТОНИКО ИМОТИ , град Пловдив
ТОНИКО ИМОТИ град Пловдив ул.'Елиезер Калев' 21

Брокер

Христо Личен телефон: 0898 44 66 65, 0898 44 66 71 гр.Пловдив ул.'Иван Вазов' 60, ет.1

Споделяне

Преглeд на обявите по населени места: