Посетена 89 пътиПубликувана в 15:47 на 03 Ноември 2025
Обща информация
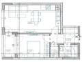
Квадратура69 m2
Етаж11-ти
ГАЗНЕ
ТEЦНЕ
Допълнителна информация
БЕЗ КОМИСИОННА ОТ КУПУВАЧ !!! НА ЦЕНА НА ИНВЕСТИТОРА !!! Предлагаме на Вашето внимание отличен и просторен двустаен апартамент с правилни форми, на последен и в същото време панорамен етаж! Без скосове ! Западно изложение ! Среден апартамент! Пред Акт 14 !
Дневна - 24кв. м. , спалня - 12кв. м. !
Двустайните апартаменти, с изложения на изток и запад, предлагат просторни дневни зони с много естествена светлина и удобно разпределение на помещенията. Те са перфектни за малки семейства или хора, които търсят уютно жилище с модерен стил.
Разсрочено плащане, удобни схеми! Отлично развит инфраструктурен район! В близост главни пътни артерии, училища, детски градини, хипермаркети.
Особености
Асансьор • С паркинг • Видео наблюдение • Контрол на достъпа • Саниран • Тухла




