Обща информация
Допълнителна информация
PSI Properties предлага за продажба комплекс от къщи в с. Първенец.
Къщите са част от нов проект, който предлага качествено строителство, функционално разпределение и светли помещения. Районът, в който се намира проекта е на тихо и спокойно място с лесен достъп, това и високата енергийна ефективност, гарантират спокоен и комфортен живот на новите собственици. Материалите, които се използват са от висок клас, а строителните дейности се изпълняват от строител с над 25 години опит.
Предлагат се различни схеми на плащане, а посочената цена е с включено ДДС.
Къщите се издават по БДС на шпакловка и замаска.
Има възможност за инсталиране на заготовка за подово отопление.
- Тип имот: Къща 🏡
- Локация: с. Първенец, област Пловдив 📍
- Ново строителство, планирано завършване 2026 г.
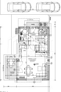
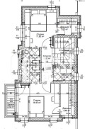
- Обща площ на всяка от къщите: 131 кв. м 📐
- Двор: 229. 5 кв. м.
Разпределение:
- Първи етаж: Дневна с кухня и трапезария с излаз към веранда, тоалетна, килер/техническо помещение
- Втори етаж: Две самостоятелни спални със собствени баня с тоалетна и дрешник, перално помещение
За повече информация и огледи свържете се с нас на посочения телефон!














