Брокер
МилаЛичен телефон: 0899 680 006
Посетена 161 пътиПубликувана в 00:07 на 14 Октомври 2025
Обща информация
Квадратура58 m2
ГАЗНЕ
Допълнителна информация
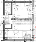
Търсите локация за своя нов бизнес или практична инвестиция? Представяме ви двустаен партерен офис с площ 58 кв. м, находящ се в новопостроена тухлена сграда в кв. Младост, на метри от бул. Сливница една от най-оживените градски артерии на Варна.
Офисът е с източно-югоизточно изложение, което осигурява естествена светлина. Високите тавани и функционалното разпределение създават усещане за простор и комфорт. Завършен е с плочки в коридора и санитарното помещение, а сградата е в етап на финализиране Акт 16 предстои.
Подходящ за: счетоводство, кабинет, бутик, салон и други.
Цена: 92, 500 (yavlenaCOM/156634).
Особености
Асансьор • Саниран • Тухла
Страница на обявата
Брокер
МилаЛичен телефон: 0899 680 006










