Посетена 5 пътиПубликувана в 13:08 на 11 Март 2026
Обща информация
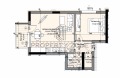
Квадратура69 m2
Етаж2-ри
Допълнителна информация
УТВЪРДЕН ИНВЕСТИТОР! РАЗСРОЧЕНО ПЛАЩАНЕ! СТАТУТ НА АПАРТАМЕНТ!
Пропърти Зоун Варна ви предлага двустаен апартамент в новострояща се сграда.
Имотът е със северозападно изложение и има следното разпределение: входно антре, дневна, спалня, баня-тоалет, балкон и килер, издава се по БДС, като има опция за завършване '' ДО КЛЮЧ ''.
Възможност за закупуване на паркомясто към имота.
Сградата е ситуирана в близост до Делта Планет мол, магазини, аптеки, училища, автобусни спирки и др.
За повече информация и огледи 0897 57 44 99 - Дженгиз Ибрямов!
Особености
Асансьор • С паркинг • Лизинг • Интернет връзка • Видео наблюдение • Контрол на достъпа • Саниран • Тухла



