Обща информация
Допълнителна информация
ТОПИММО предлага за продажба двустаен апартамент в новострояща се луксозна сграда в кв. Левски 1. Сградата ще се намира на метри от супермаркет, университет, училище, детска градина, магазини от всякакъв вид, както и с бърза връзка към булевард.
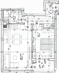
Имотът е разположен на девети етаж, със западно изложение и следното разпределение: коридор с ниша за килер, всекидневна с кухненска част 25 кв. м. , спалня 13. 2 кв. м. , санитарен възел 4. 8 кв. м. и тераса 4. 7 кв. м. с нескриваема панорама, тъй като наоколо вече съществува сграда с по-ниска етажност.
Апартаментите се издават в състояние по БДС. С възможност за закупуване на открито или подземно паркомясто. Разсрочена схема на плащане.
Можем да организираме оглед в удобно за вас време, свържете се с нас! Референтен номер: PL-4387






