Брокер
Обща информация
Допълнителна информация
БЕЗ КОМИСИОННА ОТ КУПУВАЧА!!!
Представяме на вашето внимание 3стаен апартамент в сгада МОДЕРНО НОВО СТОИТЕЛСТВО, ситуирана в близост до бул. Брюксел , с бърз и лесен достъп до Цaиградско шосе и Летището!!!
*на една спирка от МЕТРОСТАНЦИЯ ДРУЖБА!!!
*акт14- до края на 2026г!!!
*Срок за завършване- 2027г. !!!
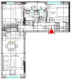
Предлагаме ви просторен, 3стаен апартамент, със ЗП-93, 32м2
*в луксозна жилищна сграда, с уникална за квартала локация
*модерна архитектура и висококачествени довършителни работи, съобразени с всички съвременни стандарти за енергийна ефективност и комфорт.
Разполагаме с други 3стайни апартаменти, с различни разпределения и на различни цени!!! Налични подземни и наземни паркоместа на цени от 22500е !!!
отговорен брокер-Жени Давидова
Агенцията предлага също:
* Безплатни огледи на имота в удобно за вас време и СЛЕД ПОДПИСАН ПРОТОКОЛ ЗА ОГЛЕД!!!
* Съдействие при ипотечно кредитиране със 100% успеваемост!!!
* Ние ще ви насочим към кредитна институция, чиито условия на кредитиране са най-подходящи за вас.


