Продава 4-СТАЕН, град Велико Търново, Бузлуджа ID 63048155
Обща информация
Допълнителна информация
ДИРЕКТНО ОТ ИНВЕСТИТОРА! БЕЗ КОМИСИОННА!
Краси Кънстръкшън ЕООД предлага апартамент, в новострояща се атрактивна и модерна жилищна сграда на ул. Димитър Благоев , кв. Бузлуджа. Комплексът е с конторлиран достъп с частен паркинг. Имотът е на комуникативно място в близост до парк, магазини и градски транспорт.
Разположението на жилищен комплекс предлага всичко, което поискате за уюта, сигурността и свободното време на цялото Ви семейство. Едно чудесно място за живеене с всички необходими удобства.
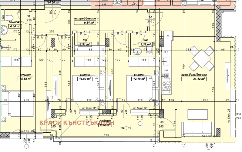
Апартаментът е с комфортно и функционално разпределение с изложение юг - изток. Чистата жилищна площ е 112, 62м2 разпределена между дневна с кухненски бокс, три спални, коридор, тоалетна, баня с тоалетна, складово помещение и тераса.
Жилището ще бъде издадено с:
- дограма с немски профил SCHUCO 82 мм, троен стъклопакет- 4 мм четири сезона, 4 мм бяло, и 4мм нискоемисийно (К) стъкло;
- входна блиндирана врата с минерална вата;
- вътрешни интериорни врати;
- подови настилки на замазка;
- стени на гипсова мазилка
- висококачествена външната изолация Baumit с много добри топлоизолационни свойства, която ще осигури ефективно отопление през зимните месеци и приятна хладина през лятото.
- Фасадната част, покрита с Baumit e водоотблъскваща и силно паропропусклива
- тухли Wienerberger
- домофонна инсталация
- асансьорна уредба от водещия световен бранд KONE. Избраният модел асансьор е с повишена енергийна ефективност и безшумен.
Жилищната сграда ще бъде изцяло завършена с удостоверение за въвеждане в експлоатация 2027 година.
Използваните технологии и материали са от най-високо качество от доказан строител







