Посетена 1 пътиПубликувана в 19:58 на 11 Април 2026
Обща информация
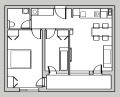
Квадратура85 m2
Етаж1-ви
ГАЗДА
ТEЦНЕ
Допълнителна информация
Продавам обзаведен югоизточен тристаен апартамент и прилежащо паркомясто с изградена зарядна станция.
Особености:
- Подово отопление във всички стаи и банята с газов котел.
- Напълно оборудвана кухня с индукционенни котлони и вградена система за пречистване на питейна вода.
- Охлаждане с климатик през лятото.
- Самостоятелно мазе.
- Френски прозорци.
- Тиха глуха улица, зелен вътрешен двор с детска площадка.
- Страхотни съседи.
В изключително спокоен и живописен квартал. В близост до детски градини, училища, спирки на градския транспорт, супермаркети и ресторанти.
Особености
Асансьор • С паркинг • Тухла









