Продава 2-СТАЕН, град София, Манастирски ливади ID 63330762
Брокер
Обща информация
Допълнителна информация
Оферта 84055
Без комисионна!
Последни апартаменти!
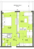
Двустаен партерен апартамент с площ от 79 кв. м( чисто 58 кв. м. и веранда от 13, 2 кв. м. ). , от 5 етажа, в нова сграда,
която е изградена на площ от 3 декара в бързо развиващия се южен квартал Манастирски ливади-изток.
Апартаментът се състои от антре, дневна с трапезария и кухненски кът, спалня с дрешник към нея, баня с тоалетна и тераса от 13, 3 кв. м. над нивото на улицата.
Изложение : юг/запад.
Кварталът предлага спокойна среда за живеене с ниско застрояване, линеен парк, обхващащ целия квартал с много зеленина, детски площадки и велоалеи.
Отличното местоположение на сградата съчетава тихо и спокойно място с удобни комуникации и възможност за бърз достъп до всички части на града чрез бул. България, бул. Тодор Каблешков и Околовръстен път!
За Ваше удобство, съвсем наблизо са вериги магазини: Джъмбо, Била и Лидл; 800 м. от Южен парк; 1. 1 км. Мол България; 1, 3 км. Мол Парадайс, също така спирки на градския транспорт, училища, детски градини, болници и бензиностанции.
Сградата е с площ от 8820 кв. м. РЗП, състояща се от три отделни входа.
Общо 72 апартамента с една, две и три спални; 46 подземни гаражи и 29 паркоместа; собствен парк 2000 кв. м. с детска площадка и водни ефекти; ограничен достъп и видеонаблюдение;
помещение за портиер; хранителен магазин Смокиня вътре в комплекса; модерна вентилируема фасада;
отопление на ток с изводи за климатици.
Сградата очаква акт 16 всеки момент.
Предимства:
-Просторен и светъл апартамент с френски прозорци с гледка към Витоша
-малък процент общи части
-чудесно местоположение на 60 метра от новоизграждащия се линеен парк, включващ езеро, реки, велоалеи, детски площадки и зелени площи
-високо ниво на звукоизолация и енергийна ефективност
-алуминиева дограма Рейнърс Мастърлайн 8 с топъл дистанционер
-Шиндлер асансьори
-Двойна зидария с шумоизолация м/у отделните апартаменти
-шумоизолация на пода и тавана
-БЕЗ КОМИСИОННА !
Ако желаете да организираме оглед, да получите допълнителна информация или
други атрактивни предложения може да се свържете с нас на посочените контакти:
Лице за контакт: Олга Дюлгерова - телефон: 0898606700
Имотна къща Римекс София може да ви съдейства с консултация при:
- Правен казус
- Независима пазарна оценка и сравнителен анализ
- Индивидуален бизнес план при продажба и покупка
- Управление на финансов ресурс
- Кредитна консултация
- Застраховка живот и имущество



