Обща информация
Допълнителна информация
Оферта 5801641
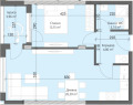
ERA Вива има удоволствието да Ви предложи двустаен, панорамен апартамен пред Акт 15 в нова модерна сграда в кв. Кършияка. Ситуирана е встрани от натоварения трафик и в същото време с бърз достъп до главните артерии на града. Жилището се състои от коридор, дневна с трапезария и кухненски бокс, самостоятелна спалня, баня с тоалетна, тераса и избено помещение. Апартаментът се издава по БДС стандарт: стени шпакловка, под - замазка, изградена ВиК, ел. инсталация с монтираани ключове, контакти и ел. табла, окабеляване за телефон и интернет, дигитална видеодомофонна система, входна блиндирана врата и напълно завършена тераса Някои от предимствата на имота са: ? Просторни помещения, правилни форми и оптимално разпределение на застроената площ. ? Качествено строителство от доказан изпълнител. ? Нисък процент общи части. ? Затворен комплекс с ограничен достъп за комфорт на живущите, но без допълнителен договор за такса подръжка. ?Луксозни общи части и фасади. ? Панорамни гледки. ? Осигурено над 100% паркирането на добра цена. ? Ниско застрояване и други. Използваните материали са съобразени с най-новите тенденции в строителството - модерна външна облицовка, изолация с каменна вата 12 см, покривна и фасадна изолация, правилна зидария на тухлите, най-висок клас алуминиева дограма с троен стъклопакет (четири сезона, К стъкло) и др. Луксозните общи части, фотоклетки и безшумен асансьор, допринасят допълнително за усещането за лукс и комфорт на живущите. Имотът е част от нова, луксозна сграда, която се намира на спокойно и тихо място и в същото време урбанизирано с лесен и асфалтиран достъп. В района има всичко необходимо: магазини, училища, болница, спирки на градски транспорт и др. Жилището е чудесна покупка, както за живеене така и за отдаване под наем.
Инвестицията в недвижим имот е най- сигурният начин да съхраним парите си от инфлационно обезценяване. Направете го сега. ЕРА България е регистриран кредитен посредник към БНБ и предоставя безплатна консултация и съдействие за най-изгодна оферта спрямо вашия профил и желание при финансиране на избрания от Вас имот.





