Обща информация
Допълнителна информация
Агенция АМВ КОМЕРС има удоволствието да ви предложи страхотен тристаен апартамент в жилищна сграда с предстоящо строителство в кв. Сухата река . Сградата ще се намира на едно от най-комуникативните места в София, в близост до театър София , парк Заимов и на пешеходно разстояние от метростанция Театрална .
Очаквано начало на строителството пролетта на 2026г.
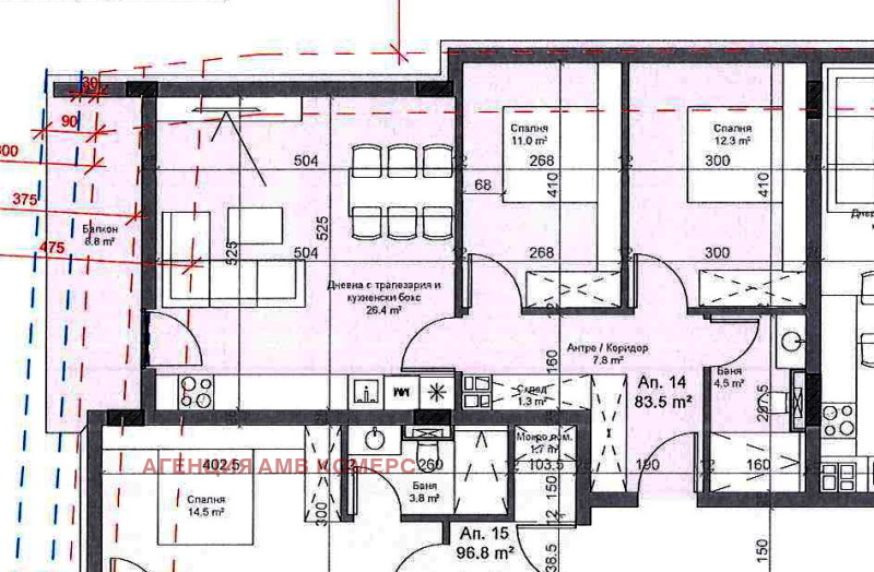
Предлагания апартамент е с квадратура от 99 кв. м (ап. 14) , намира се на ет. 3 и се състои от : антре , просторна дневна с кухненски бокс , родителска спалня , детска спалня , баня с тоалетна , тераса , склад .
Към жилището се предлага и подземно паркомясто на цена 27 000 евро.
Инвеститора е утвърден в бранша, с множество въведени в експлоатация сгради.
Начина на плащане е съобразен спрамо възможностите
на клиента , като се дава възможност за разсрочено
плащане, според достигнатия етап на строителството или с банков кредит.
Ако се интересувате от отличен имот за живеене или за инвестиция, моля обадете се!
За контакти - инж. Тони Родева 0886 031 696, Валентина Георгиева 0895 23 55 55, [email protected]



