Продава 2-СТАЕН, град Пловдив, Христо Смирненски ID 64098903

108 924 €213 036.83 лв.Цената е с включено ДДС

Агенция

ЕЙЧ ЕЙЧ ПРОПЪРТИ ЕООД, град Пловдив
ЕЙЧ ЕЙЧ ПРОПЪРТИ ЕООДград Пловдив бул Мария Луиза 29

Брокер

АнгелЛичен телефон: 0897080399
Посетена 84 пътиПубликувана в 14:10 на 18 Юли 2025

Обща информация

Квадратура75 m2
Етаж6-ти

Допълнителна информация

Без комисионна такса към купувача!

Предлагам за продажба двустаен апартамент с площ от 75, 12 м² , разположен на шести жилищен етаж в бъдеща сграда, позиционирана в най-предпочитаната зона на кв. Христо Смирненски, в близост до:

- Гребен канал
- УМБАЛ Св. Георги
- МОЛ Пловдив
- Училища и детски градини
- Хипермаркети

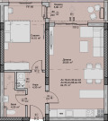
📌 Разпределение на жилището:

Просторна дневна с трапезария и кухненски бокс 27 м²

Спалня 14, 15 м²

Баня с тоалетна 4, 2 м²

Антре 4, 3 м²

Лоджия 5, 8 м²

Склад 1, 08 м²

✅ Среден апартамент
✅ Североизточно изложение
✅ Етаж 6 от 9, удобна и предпочитана позиция в сградата
✅ Възможност за покупка на гараж или паркомясто
✅ Без комисионна от страна на купувача
✅ Подходящ за закупуване с банково финансиране

🏗 ️ Сградата е пред разрешение за строеж, с планирано завършване и Акт 16 през 2028 г.
🔨 Изпълнява се от доказан строител с десетки успешно завършени обекти в Пловдив, използващ висококачествени материали и съвременни строителни технологии

💼 Имот с отличен потенциал както за собствено ползване, така и за инвестиция с висока доходност

📞 Свържете се с мен за повече информация - 0897 080 399 / Ангел Катушев

Особености

Асансьор • Тухла

Страница на обявата

Агенция

ЕЙЧ ЕЙЧ ПРОПЪРТИ ЕООД, град Пловдив
ЕЙЧ ЕЙЧ ПРОПЪРТИ ЕООДград Пловдив бул Мария Луиза 29

Брокер

АнгелЛичен телефон: 0897080399

Споделяне

Преглeд на обявите по населени места: