Обща информация
Допълнителна информация
!!!Нова жилищна сграда във Вилна зона Малинова Долина-Изток!!!
Предлагаме мезонет апартамент в новострояща се бутикова сграда със съвременен дизайн и хубава локация в Малинова долина, само на минути от Ринг Мол и новият ритейл парк, съчетаващ търговски и офис площи, както и хипермаркети.
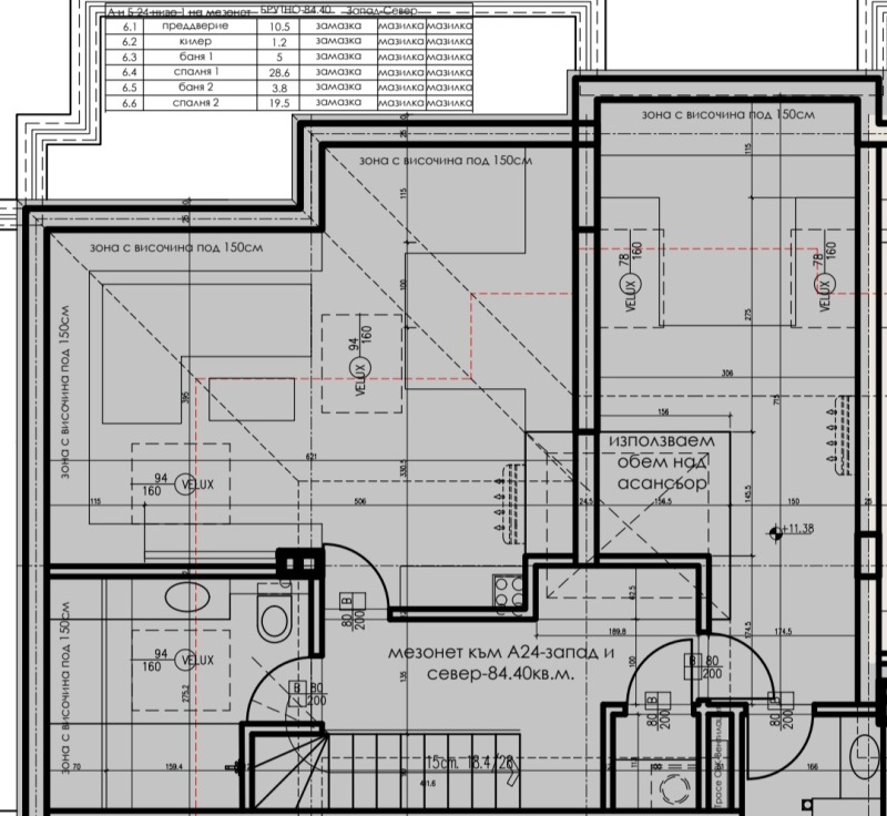
Апартамент 24 е разположен на 4 и 5 етаж и се състои от горен етаж предверие килер 2 спални и 2 бани, долния етаж се състои от предверие дневна и WC плюс тераса . Апартаментите ще бъдат завършени на мазилка и подова замазка, входна блиндирана врата, монтирани ключове/контакти, луксозни общи части.
Разполагаме с мезонети двустайни и тристайни апартаменти и подземни паркоместа в сградата.
Формат Строй ООД e доказан строител с богат опит. Ние гарантираме качествено строителство .
тел. : 0893002882, e-mail: office@formatstroy. com, http://: formatstroy. imot.bg










