Продава 2-СТАЕН, град Варна, Владислав Варненчик 1 ID 64282089
Брокер
Обща информация
Допълнителна информация
БИЛДИНГ БОКС предлага за продажба тристаен апартамент в новострояща се жилищна сграда.
ЛОКАЦИЯ : Жилищната сграда се намира в кв. Владиславово. Локация с бърз достъп до главен булевард, спирки на градски транспорт, търговски обекти, медицински центрове.
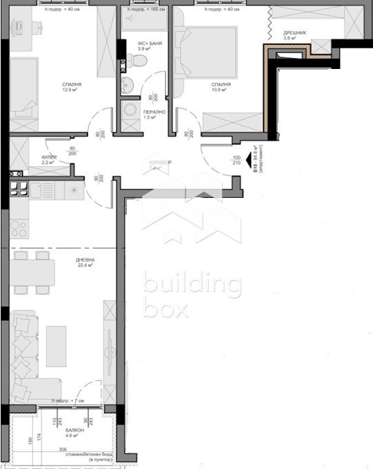
РАЗПРЕДЕЛЕНИЕ : Всекидневна с кухненски бокс с площ от 22. 40 кв. м. , две спални по 12. 90 кв. м. и 10. 90 кв. м. , баня и тоалетна, перално помещение, килер, коридор, балкон.
ЕТАЖНОСТ: Етаж 3 от 5
ИЗЛОЖЕНИЕ:Изток/Запад
ОТОПЛЕНИЕ: Електричество
ПАРКИРАНЕ: Налични подземни паркоместа, гаражи, както и външни паркоместа, които могат да бъдат закупени допълнително.
ЕТАП НА СТРОИТЕЛСТВО : С разрешение за строеж, открита строителна площадка
СГРАДА: Сградата е проектирана на 5 жилищни етажа, с общо 42 апартамента и 2 офиса. Апартаментите разполагат с функционални разпределения.
ИНВЕСТИТОР : Инвеститор с дългогодишен опит и утвърден в сферата на жилищно, промишлено строителство, както и в ремонти на имоти и съоръжения.
Билдинг Бокс предоставя безплатна консултация и съдействие при финансиране на избрания от Вас имот.
Оферта


