Брокер
Обща информация
Допълнителна информация
0% КОМИСИОН - ДИРЕКТНИ ЦЕНИ ОТ ИНВЕСТИТОР ! 💥 ОФЕРТА : 19401
'ГОЛД ИМОТИ' има удоволствие да Ви представи новоизграждащ се проект от две малки сгради на пет етажа .
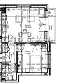
➡ ️ Разпределение :
Двустайните апартаменти се състоят от входно антре , всекидневна с кухненски бокс , спалня , баня с тоалетна , склад и тераса.
➡ ️ Предлагаме следните модули :
-55. 95кв. м. - 69 900
-61, 61кв. м. - 72 700
-64, 24кв. м. - 76 800
-67, 08кв. м. - 79 150
-78, 26кв. м. - 89 900
-62, 91кв. м. - 89 900
-81, 42кв. м. + 37, 30кв. м. веранда - 106 200
-96, 45кв. м. - 119 700
🅿 ️ Паркиране :
Възможност за покупка на подземни и наземни паркоместа и партерни гаражи.
✅ Степен на завършеност:
Жилищата се издават по БДС: шпакловка и замазка, ел. инсталация до ключ, ВиК до тапа, външна блиндирана врата, висок клас ПВЦ дограма.
📅 Срокове за изпълнение:
-Очаква се стартиране на проекта до средата на годината.
-Пусков срок - 2, 5 години от стартирането на проекта.
✅ За сградата :
-Две малки сгради на пет етажа.
-Всяка сграда е с общо 12 апартамента.
-Наличие на едностайни, двустайни , тристайни и четиристайни апартаменти.
📍 Локация:
Намира се в оживената част на кв. Прослав - в близост до ОУ 'Тодор Каблешков'
➡ ️ 'ГОЛД ИМОТИ' Ви предлага да се възползвате от професионално кредитно посредничество чрез Credit Center при ипотека, потребителски кредит и рефинансиране!
-УСЛУГАТА Е ИЗЦЯЛО БЕЗПЛАТНА!
-ИЗГОТВЯНЕ НА НЯКОЛКО ОФЕРТИ ОТ ВОДЕЩИ БАНКИ!
-НАЙ-ИЗГОДНИ УСЛОВИЯ СПРЯМО ВАШИЯТ ПРОФИЛ!
-НЕ Е НЕОБХОДИМО ДА СЕ РАЗКАРВАТЕ ВЪВ ВСЕКИ КЛОН НА РАЗЛИЧНИ БАНКИ!
➡ ️ Още атрактивни и актуални оферти може да разгледате на нашият сайт: www.goldhome.bg
📲 За повече информация и при интерес за оглед, моля свържете се с нас. 📲









