Продава 2-СТАЕН, град София, Модерно предградие ID 64758223
Брокер
Обща информация
Допълнителна информация
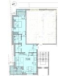
Явлена представя на Вашето внимание двустаен апартамент в новострояща се жилищна сграда в кв. Модерно предградие, акт 14 от септември 2025. Жилището е със застроена площ 68. 17 м2 (79. 45 м2 с общи части), на втори етаж (от пет жилищни, пет апартамента на етажа) и с разпределение - антре, килер, дневна с кухненски кът, баня с тоалетна, спалня и два балкона. Изложение изток и запад. Планирано завършване (акт 16) до ноември 2026. Сградата е на слънчева и широка улица, на три минути с кола от бул. Сливница и на 450 м от спирки на градски транспорт. Към апартамента има възможност за покупка на гараж и/или паркомясто на кота нула с удобен подход. Гъвкава схема на плащане. В района има училища, детски градини, магазини и супермаркети, квартала се развива в положителна насока с нови сгради, добра инфраструктура, млади семейства и бърз достъп до основни булеварди. /YavlenaCOM-162766/





