Продава 2-СТАЕН, град София, Манастирски ливади ID 64787535
189 826 €371 267.39 лв.Цената е с включено ДДС
Брокер
ДеницаЛичен телефон: 0878729294
Посетена 74 пътиПубликувана в 14:13 на 15 Януари 2026
Обща информация
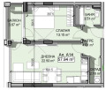
Квадратура67 m2
Етаж1-ви
Допълнителна информация
СГРАДА ПРЕД АКТ 16!!!
✨ Продава се двустаен апартамент 69 кв. м. на 4-ти етаж в нова бутикова сграда✨
➡ Супер разпределение дневна с кухненски бокс, спалня, баня с тоалетна + тераса
➡ Панорамни прозорци и високи тавани 2, 70 м. много светлина и простор
➡ Висок клас строителство:
-фасада с италиански плоскости Laminam
-тухли Wienerberger и шумоизолация
-дограма Reynaers с троен стъклопакет
-луксозни асансьори Schindler
-естествен травертин в общите части
-входна врата Solid
👌 Възможност за подово отопление и охлаждане с термопомпа.
💰 Има различни варианти за плащане гъвкави според клиента.
Идеален както за живеене, така и за инвестиция.
📞 За повече информация и огледи: 0878264666 Реф. номер: SOF009
Особености
Асансьор • Видео наблюдение • Контрол на достъпа • Охрана • Саниран • В затворен комплекс • Тухла
Страница на обявата
Брокер
ДеницаЛичен телефон: 0878729294


