Обща информация
Допълнителна информация
СПОКОЙСТВИЕ ! ! ! ТИШИНА ! ! ! НИСЪК ПРОЦЕНТ ОБЩИ ЧАСТИ ! ! ! ! БУТИКОВА СГРАДА ! ! !
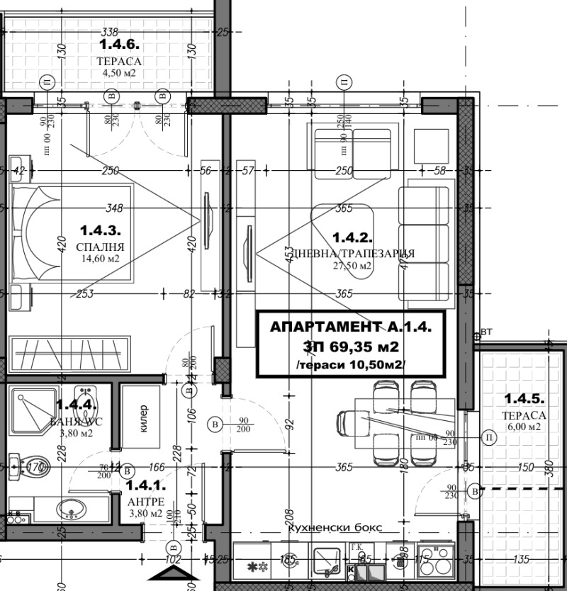
Home2U представя на вашето внимание двустаен апартамент, в новострояща се сграда намираща се в Гара Елин Пелин, само на 25мин от идеалния центъра на гр. София. Апартаментът е в малка бутикова сграда на 5 етажа в новостроящ се комплекс от 4 сгради, проектиран с мисъл за комфортно обитаване за всяко семейство. Всеки един от апартаментите в сграда е проектиран с мисъл за уют, спокойствие и функционалност, гарантиращо максимално използване на пространството. Ситуиран е на първи етаж и се състои от антре, дневна с кухненски бокс, спалня с излаз на тераса и баня с тоалетна. Към апартамента има опция да се закупи паркомясто или гаражи. Ако желаете да закупите имота, обадете се СЕГА и цитирайте следния код: 138160


