Посетена 68 пътиПубликувана в 10:13 на 29 Септември 2025
Обща информация
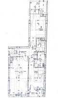
Квадратура110 m2
Етаж2-ри
ТEЦДА
Допълнителна информация
3- стаен в нова сграда с акт 16 на 3 мин. от метрото. Голями светли стаи. Без комисион от купувача. Нов апартамент с акт 16 от 2025г. Холс кухненски бокс- 26, 41кв. м и спалня на юг-14, 46кв. м с прекрасна гледка, 2ра спалня-15, 86кв. м на север с гледка, баня 1-3, 70кв. м, баня 2- 4, 84кв. м. Пред всяка стая има балкон- балкон 1-4, 52кв. м. , балкон 2- 3, 61кв. м.
В близост са 5 градско болница, 7ма поликлиника, детски градини и ясли. Големи хипермаркети и вериги за храна, мебели, техника. Множество свободни места за паркиране без зона.
Огледи по всяко време: тел. 0886-858 004
Особености
Асансьор • Тухла














