Брокер
ИванЛичен телефон: 0883355514
Посетена 3 пътиПубликувана в 13:47 на 01 Април 2026
Обща информация
Квадратура76 m2
Етаж3-ти
Допълнителна информация
оф. 25085
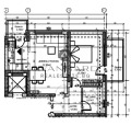
ПРЕД АКТ 16 ! Предлагаме Ви да закупите двустаен апартамент пред акт 16 , състоящ се от хол с кухненски бокс и трапезария , спалня , баня с тоалетна , две тераси , коридор и прилежащо избено помещение . Жилището , което Ви предлагаме да закупите е на шпакловка и замазка , което Ви позволява да го довършите по ваш вкус. Намира се на спокойна и комуникативна локация , в близост до детски градини , училища , автобусни спирки , магазини и др.
Авангард Риъл Естейт предлага Висока сигурност при покупка на имот и цялостно съдействие до финализиране на сделката пред нотариус. За контакт: email: [email protected]; За още актуални оферти: www.avangardrealestate.bg
Особености
Асансьор • Интернет връзка • Саниран • Тухла
Страница на обявата
Брокер
ИванЛичен телефон: 0883355514








