Брокер
Обща информация
Допълнителна информация
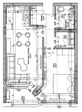
Имотен Център Ви представя страхотен двустаен апартамент в сграда на с АКТ 15 и очакващ АКТ 16 до края на 2025г. в ж. к. Малинова долина . Сградата е разположена до НСА , в близост до бъдеща метростанция и бърза връзка към бул. Климент Охридски и Околовръстен път . Имотът е разположен на 1ви етаж над магазини . Функционално разпределение на имота: входно антре с площ 6 кв. м. , всекидневна с кухненски бокс 25кв. м. , спалня -15кв. м. ,баня с тоалетна -4 кв. .м, мокро помещение - 3кв. м. и балкон - 4 кв. м. . Възможност за покупка с кредит при 100% финансиране от банка . Към апартамента се продава и задължително паркомясто на цена 30 000 евро .
Можем да организираме оглед на имота в удобно за вас време.
За огледи или повече информация моля да се свържете с нас.
Ние от Имотен Център България можем да Ви предложим и осигурим:
- Безплатно консултиране с кредитен посредник със 100% успеваемост (най-ниски лихви)
- Управление на имоти и гарантиран месечен наем
- Инвестиционни проекти
- Юридически, счетоводни услуги и др.
- Ремонтни дейности, строителна бригада и обзавеждане
- Различни видове апартаменти в района
Водещ брокер - Атанас Бодуров







