Посетена 6 пътиПубликувана в 13:46 на 06 Март 2026
Обща информация
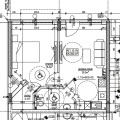
Квадратура65 m2
Допълнителна информация
Директно от строителя. БЕЗ КОМИСИОН! ПРЕД АКТ 16! Предлагаме двустаен апартамент в нова сграда в комплекс Фонтаните, пред Акт 16, на партерен етаж, който е много подходящ за офис или кабинет. Имота със самостоятелен вход. Големи прозорци и с височина на таваните към 4 м. Комплекс се намира на комуникативно място. Съвсем на близо се намират супермаркети: Билла, Лидл, Фантастико, Кауфланд, различни малки магазини, училище, детски градини, непосредствено до спирката на градския транспорт, на 5 мин пеша до Бизнес парка и около 10 мин. пеша до Метростанция. В самият комплекс функционират детска ясла, кросфит, сладкарница, кафенета, детска школа за допълнителна подготовка на ученици.
Особености
Тухла




