Брокер
Обща информация
Допълнителна информация
Референтен номер: 569.
Реф. номер: 569
ДВУСТАЕН АПАРТАМЕНТ ПРЕД АКТ 15 КЪРШИЯКА
Предлагаме на Вашето внимание ПРОСТОРЕН ДВУСТАЕН АПАРТАМЕНТ в новоизграждаща се сграда с АКТ 14.
Основни характеристики:
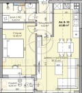
-Площ- 80кв. м РЗП- 66кв. м.
-Разпределение- просторен хол с кухненски бокс, голяма спалня, баня с тоалетна, входно антре и тераса.
-Вид строителство- тухла 2025г.
-Етажност- 3ти етаж от 11 (асансьор)
Жилището ще бъде издадено на шпакловка и замазка, ВиК до тапа и ЕЛ инсталация до ключ. Чудесна възможност да го обзаведете и превърнете в МЕЧТАНИЯТ ЗА ВАС ДОМ.
Локация: Намира се на много комуникативна локация, която предлага всичко необходимо за едно семейство. Това Ви дава възможност да го закупите с цел инвестиция и отдаване ПОД НАЕМ.
За повече информация и организиране на огледи, моля, свържете се с нас на посочения номер, като ще Ви е необходим следният референтен номер: 569
Лайт Хоум имоти е доверен партньор на най-големите банкови институции в страната и съдейства за преференциални условия при нужда от кредитиране. Ще получите юридическо съдействие през целия процес на сделката, както и съдействие при подготовка, подаване и получаване на всички необходими документи за сделката.



