Брокер
Обща информация
Допълнителна информация
SVETLINA REAL ESTATE представя на Вашето внимание нова луксозна сграда, намираща се на много комуникативно място в близост до ул. Пиротска .
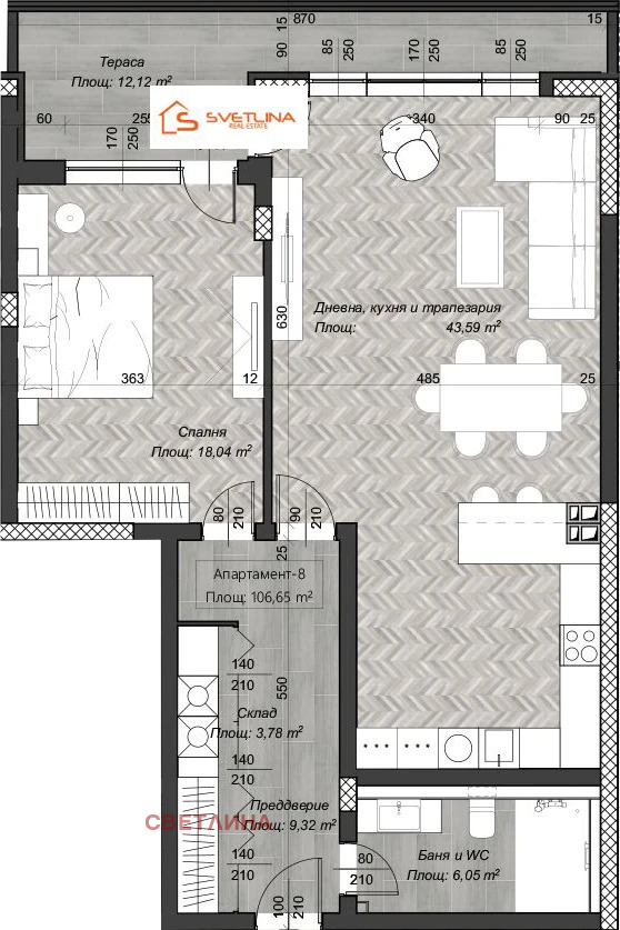
Представяме Ви Двустаен апартамент с площ от 107кв. м и обща площ 126кв. м със следното
разпределение:
- входно антре
- складово помещение
- баня с тоалетна
- просторна дневна, кухня и трапезария 43кв. м с излаз към тераса
- просторна спалня с излаз към тераса
Фасадата на сградата е с изчистени форми. Използвани са фасадни декоративни елементи, които подчертават обемите. Конструкцията е монолитна стоманобетонова с външни зидове от 25см тухли + 10см топлоизолация и преградни стени от 25 или 12см тухли. Вътрешните прегради и заграждения на инсталациите в баните са от гипсокартон.
Терасите са предвидени с ажурни и плътни парапети с височина от минимум 120см от готов под. Заложени са необходимите топло и хидроизолации съобразно действащите нормативи.
Създаването на общо пространство в градска среда е предизвикателство при осигуряването му по функционален начин, което да донесе допълнително за уютна обстановка и качеството на живот. Предвидена е богато озеленена общодостъпна покривна тераса в акцентната зона на сградата зоната на пробива.
Предимства на комплекса:
Отлична локация
Функционални и светли жилища
Луксозни общи части
Озеленена покривна градина
Сигурност контрол на достъпа
Жилищни етажи от 2 до 12:
На тези нива са разположени 69 апартамента различни по типология и големина. Достъпът до тях се осъществява посредством двете вертикални комуникационни ядра стълбищни клетки и асансьори.
Жилищен етаж 13:
На последния етаж е разположен един многостаен апартамент с частна покривна тераса, от който се откриват панорамни гледки към града.
Подземен паркинг:
В сутерена са разположени 38бр. паркоместа. Предвижда се автоматизирана система за достъп с дистанционно управление. Стълбищните ядра са отделени от зоната за автомобили с пожарозащитни врати. Предвидени са технически и складови помещения на това ниво.
Партерен етаж:
Разположени са 18бр. покрити и 7 бр. открити паркоместа. , като до тях се стига от автомобилните достъпи от бул. инж. Иван Иванов от запад.
Стълбищните ядра са отделени от зоната за автомобили с пожарозащитни врати. Във входните фоайета са отделени общи помещения и помещения за охранител. Предвижда се автоматизирана система за контрол на достъпа. Предвидени са също и складови помещения на това ниво.
В зоната на ъгъла /при пресичането на ул. Пиротска и бул. инж. Иван Иванов / е разположен офис-1 с площ 268, 99кв. м. /вкл. склад (4. 15кв. м. ), WC (5. 66кв. м. ) и склад (7. 11кв. м. )/. На това ниво е проектиран и още един по-малък офис-2 с вход от ул. Пиротска , с площ от 88, 61кв. м /вкл. склад (10. 87кв. м. ) и WC (4. 50кв. м. )/.
Надземен паркинг:
Разположени са 26бр. паркоместа. , като до тях се стига с двулентова вътрешна рампа от кота 0. 00, с вход от бул. инж. Иван Иванов от запад.
Стълбищните ядра са отделени от зоната за автомобили с пожарозащитни врати. Предвидени са технически и складови помещения на това ниво.
Svetlina Real Estate е с 15 годишен опит в посредничеството при покупко-продажба на недвижими имоти. Мисията ни е да реализираме Вашите идеи по най-добрия начин. Нашите експерти ще Ви съдействат и подпомoгнат при финализиране на покупката на недвижим имот с банков кредит, защото за нас е важно клиентите ни да са напълно удовлетворени.
Предлагаме Ви напълно БЕЗПЛАТНИ консултации и съдействие при всякакъв вид банково финансиране.
Свържете с отговорния брокер, за да получите подробна информация относно посочения имот в офертата. ОЧАКВАМЕ ВИ!
Отговорен брокер: Елена Христова
Телефон: 0887755633








