Обща информация
Допълнителна информация
От агенция за недвижими имоти ' ПРИОРИТЕТ ' Ви представяме двустаен апартамент за продажба на метри от метростанция ' Бизнес Парк '!!!
ДОПЪЛНИТЕЛНО ОПИСАНИЕ:
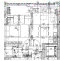
Апартаментът има следното разпределение: входно антре, всекидневна с кухненски бокс, спалня, баня с тоалетна и балкон. Жилището е със застроена площ: 53. 12 кв. м. Изложение:Запад. Сградата се намира в непосредствена близост до метростанция ' Бизнес Парк', множество училища, търговски обекти, спирки на градски транспорт. Един нов проект от инвеститор с множество построени сгради. Висок клас строителство. Разполагаме и с други имоти в сградата, има възможност за закупуване на паркомясто или гараж.
ЗА ОГЛЕДИ И ПОВЕЧЕ ИНФОРМАЦИЯ - Аспарух Кодулев, тел: 089 407 00 20.
Ако съм зает и не Ви отговоря, моля позвънете пак или изпратете запитване по e-mail:prioritet. estate@gmail. com


