Обща информация
Допълнителна информация
Компания X представя на Вашето внимание тристаен апартамент в кв. Тракия!
МЕСТОПОЛОЖЕНИЕ: Квартал Тракия е един от живописните и желани райони за живеене в Пловдив, като предлага комбинация от удобства, съвременен начин на живот и зеленина. Локацията на имота е с отлична инфраструктура, пешаходни и вело алеи, паркове и широки булевари с много добре развита транспортна мрежа. 
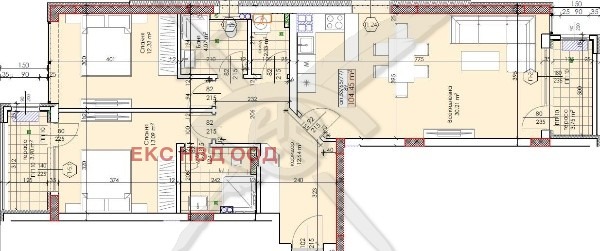
РАЗПРЕДЕЛЕНИЕ: Жилището разполага с площ от 119 кв. м. , разпределена в просторен хол с трапезария и кухня в отворен план, две самостоятелни спални, две бани с тоалетни, склад, коридор и две просторни тераси с гледка, съответно към Родопите и Парк Лаута. 
СЪСТОЯНИЕ: Пред АКТ 16!
Заповядайте да Ви го покажем. Използвайки нашите услуги Вие ще превърнете закупуването на новия си дом в едно приятно изживяване, ще получите персонален консултант, съдействие при кандидатстване за кредит от всички банки в България, интериорни дизайнери и екип, който да се погрижи за нужните документи по Вашата сделка. На Ваше разположение сме всеки ден, от понеделник до неделя от 09:00 до 20:00ч. Възползвайте се от безплатна консултация в наш офис, където ще ви спестим време и ще ви запознаем с всички актуални имоти в България, отговарящи на Вашето търсене. Свържете се с нас и цитирайте кода към имота: 83939

