Брокер
Офис 'пл. Света Неделя'Личен телефон: 0882 121 488
Посетена 85 пътиПубликувана в 03:15 на 12 Декември 2025
Обща информация
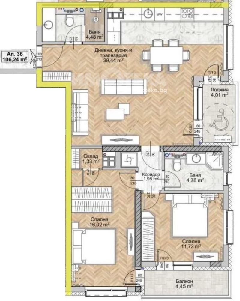
Квадратура123 m2
Етаж5-ти
ГАЗНЕ
ТEЦДА
Допълнителна информация
Функционален тристаен апартамент в жк ' ЛЮЛИН 8' !
Върху площ от 123 кв. м са разположени хол с трапезария и кухненски бокс (40 кв. м), две спални съответно 16 и 18 кв. м, две бани и две тераси.
Изложения - ЮИ.
Етаж 5 от 9.
Паркомясто 18500 евро.
' Люлин-8' или ' Люлин - център' е предпочитан за живеене и инвестиция район!
Отлична и изградена инфраструктура:
- МЕТРОСТАНЦИЯ ' Сливница'
- спирки на градски транспорт
- училища и детски градини
- множество магазини.
Модерна новострояща се сграда в жк ' ЛЮЛИН 8' .
Правилни форми и просторни помещения съответстващи на изисканите общи части!
Модерна сграда със съответстваща цена.
Метростанция.
Функционални разпределения.
Обади се сега и цитирай този код 675416
Особености
Асансьор • Тухла
Страница на обявата
Брокер
Офис 'пл. Света Неделя'Личен телефон: 0882 121 488


