Продава 2-СТАЕН, град София, Люлин - център ID 66676963
129 465 €253 211.53 лв.Цената е с включено ДДС
Брокер
БИЛДИНГ БОКС Личен телефон: 0877734412
Посетена 4 пътиПубликувана в 15:25 на 05 Ноември 2025
Обща информация
Квадратура92 m2
Етаж5-ти
Допълнителна информация
ПРЕД РАЗРЕШЕНИЕ ЗА СТРОЕЖ! МЕТРО! 1650 е/кв. м. !
БИЛДИНГБОКС предлага за продажба страхотен двустаен апартамент в сграда, която предстои да бъде започната - на 300м. от метростанция ' Люлин' .
Сградата е пред разрешение за строеж и има само 5 свободни апартамента, включително с този.
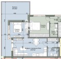
Апартамента е светъл, с две изложения - север и запад. Намира се на 5-ти етаж от общо 5.
Състои се от две спални, просторна дневна с кухненски бокс, антре, баня с тоалетна и балкон.
Застроена площ - 78. 03 кв. м.
Отоплението ще е на климатици.
Имате възможност и за покупка на паркомясто или гараж.
БИЛДИНГ БОКС Ви предлага безплатна консултация и кредитно съдействие за финансиране на покупката на Вашия имот.
Оферта 26211
Особености
Тухла
Страница на обявата
Брокер
БИЛДИНГ БОКС Личен телефон: 0877734412




