Обща информация
Допълнителна информация
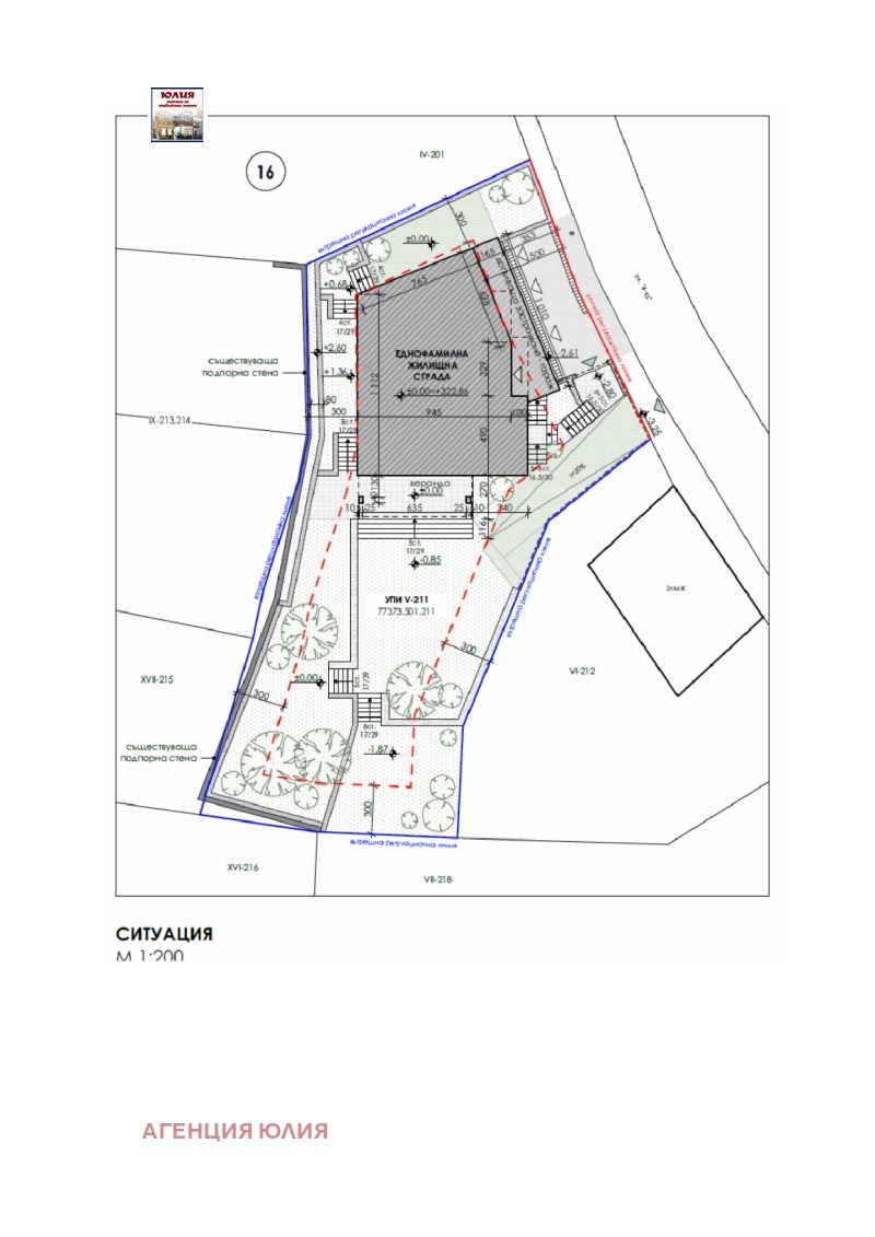
Парцел от 635 кв. м. , близо до центъра на с. Храбрино, с красива гледка към околността.
Безсрочни партиди за трифазен ток и вода.
Започнат строеж на еднофамилна къща със следните параметри :
- 131, 75 кв. м застроена площ,
- 19 кв. м допълнително застрояване
- 395 кв. м. РЗП
Разрешение за строеж от 21. 07. 2023г.
Проектът е за триетажна жилищна сграда, чието обемно пространствено и функционално разпределение е изведено от градоустройствените параметри и природните дадености на имота.
Етажното ниво на кота -2, 61 е с достъп от улицата от север и се явява под нивото на прилежащия терен в останалите посоки. Състои се от обширно пространство за гариране на два автомобила и от две обслужващи помещения. Чрез вътрешно стълбище с топла връзка е осигурен достъп до къщата.
Основният вход за първото жилищно ниво на кота 0, 00 се достига от улицата.
Разпределението на първия етажа е: входно преддверие, дневна с кухня и трапезария, спалня със собствени баня и гардеробно помещение, килер и санитарно помещение.
От дневната на югоизток се осъществява достъп до обширна полупокрита веранда от която се преминава към двора. От спалнята също има директен достъп към северозападната част на двора.
По вътрешно стълбище в къщата се достига до етаж втори на кота +2, 96, където са развити вестибюл, работен кабинет със складово помещение, баня със санитарен възел, две спални и две тераси.
Отоплението и охлаждането са предвидени с термопомпа въздух-вода.
Има отделен проект за подовата инсталация, като допълнително биха могли да се поставят конвектори.
Във втория етап на проекта е предвидено изграждане на фотоволтаична инсталация на покрива на къщата.




