Брокер
Обща информация
Допълнителна информация
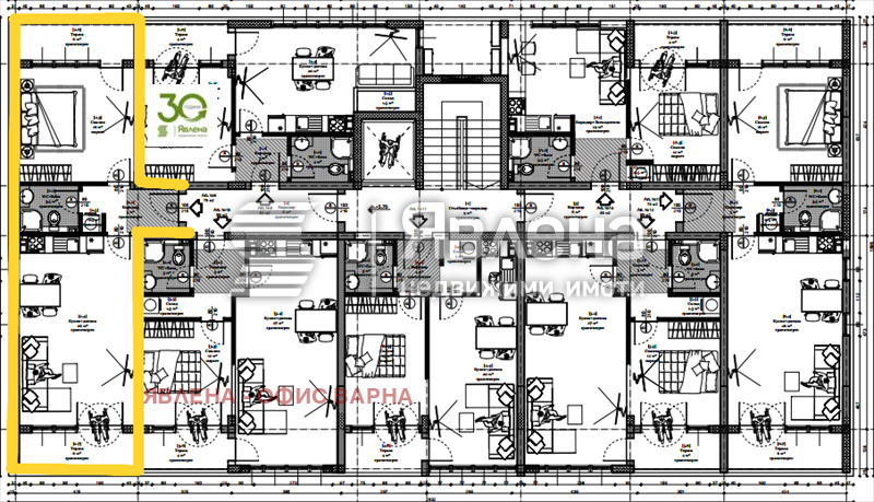
ЕКСКЛУЗИВНО! ОТ ЯВЛЕНА!Предлагаме за продажба двустаен апартамент в предстоящо строителство на жилищна сграда в квартал Аспарухово. Сградата ще бъде ситуирана до Стадион ' Аспарухово' , под моста и ще има нескриваема морска панорама. Има налични двустайни, тристайни апартаменти на различни етажи, открити и закрити паркоместа и гаражи. Съответния двустаен апартамент е с функционално разпределение на две изложения, състои се от просторен дневен тракт с кухненски кът 26к. м. , спалня 16кв. м. , антре, килер, баня с тоалет и два балкона за двете стаи. ЧП 75 кв. м. , площ с общи части 85, 35 кв. м. Сградата е разположена на спокойна, същевременно комуникативна локация, предлагаща простор и панорамни гледки към морето и града. Предлагаме различни схеми на разсрочено плащане. Срок на завършване 30 месеца. Отлични имоти, както за целогодишно живеене, така и за инвестиция! (yavlenaCOM/157944).


