Продава 3-СТАЕН, град София, Дървеница ID 67009184

235 000 €459 620.05 лв.Цената е с включено ДДС

Агенция

ВОЛАНТИС БЪЛГАРИЯ, град София
ВОЛАНТИС БЪЛГАРИЯград София бул. България 53, ет. 3, офис 27

Брокер

ОфисЛичен телефон: +359 882 100 101
Посетена 64 пътиПубликувана в 13:02 на 23 Септември 2025

Обща информация

Квадратура106 m2

Допълнителна информация

КАПАРИРАН! Уникална комбинация АКТ 16, шпакловка и замазка, топ локация и изключително качество на строителството!

Търсите дом, който съчетава сигурност, спокойствие и удобства на отлична локация? Това е вашият апартамент директно от инвеститор, цена с включено ДДС!

Тристаен апартамент с двор в кв. Малинова долина комплекс TWINS RESIDENCE

Жилището е разположено на партерен етаж в сграда от затворен тип с контролиран достъп. Комплексът разполага с богато озеленен вътрешен двор с алеи, детска площадка, градинско осветление и кътове за отдих.

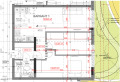
Разпределение към момента имотът е еднопространствен, като има изготвен проект за тристаен апартамент (виж скицата). Преграждането на имота по ваше желание е включено в цената!

Обща площ: 93, 43 м² (81, 32 м² застроена площ), Двор 12, 45 м²

Предимства на сградата:

Луксозни общи части, асансьори ORONA
Елегантна фасада с ефектни композитни елементи и френски прозорци
Мултисплит климатична система отопление и охлаждане на ток
Подземни и надземни гаражи
Възможност за довършване до ключ или пантофки

Материали:

Тухли Wienerberger POROTHERM
Топлоизолация 100 мм HPS
PVC дограма с троен стъклопакет
Блиндирани входни врати

Локация:

Комплексът се намира на ул. Овчаренски водопад! На пешеходно разстояние от метростанция Александър Малинов , бул. Андрей Ляпчев , Лидл, Фантастико, парк Въртопо , УНСС и Лесотехнически университет. Районът е уреден, тих и същевременно с отлична транспортна свързаност.

За инвеститора:

GREEN CASTLE е строително-инвестиционна компания с дългогодишен опит в проектирането и изграждането на жилищни сгради от най-висок клас. Компанията работи с екип от доказани професионалисти, използва висококачествени материали и модерни технологии, като гарантира надеждност, сигурност и завършване на всеки свой проект. Освен в строителството, GREEN CASTLE предлага интериорен дизайн и довършителни работи, което дава възможност за индивидуални решения за довършване до ключ или напълно завършени имоти.

За допълнителна информация и огледи, моля свържете се с нас на 0882 100 101 Волантис България

Особености

Асансьор • С гараж • С паркинг • Лизинг • Интернет връзка • Контрол на достъпа • Саниран • Тухла

Страница на обявата

Агенция

ВОЛАНТИС БЪЛГАРИЯ, град София
ВОЛАНТИС БЪЛГАРИЯград София бул. България 53, ет. 3, офис 27

Брокер

ОфисЛичен телефон: +359 882 100 101

Споделяне

Преглeд на обявите по населени места: