Брокер
Обща информация
Допълнителна информация
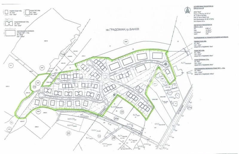
Поземлен имот (УПИ) с отлични параметри и стратегическо местоположение само на 150 метра от главна улица и в непосредствена близост до популярната Пътека на здравето в гр. Банкя.
Параметри на застрояване - зона ЖМ2:
Плътност на застрояване: 25% 30%
КИНТ: 0. 8 1. 0
Озеленяване: 60%
Кота корниз: 8. 5 м 10 м
. Благодарение на тези показатели имотът е подходящ за изграждане на жилищен комплекс от затворен тип, семейни къщи или зона с модерна архитектура и простор.
На метри от ул. ' Цар Симеон' . Граничи с известната - ' Пътека на здравето' .
Парцелът се предлага за обявената цена или срещу обезщетение 25%.
Равен и лесен за строителство терен;
Прекрасна панорама и зелена околност;
Близо до Пътеката на здравето и градска инфраструктура;
Подходящ за инвестиция в жилищен проект;
Перспективна и търсена локация.
Обади се сега и цитирай този код 673424

