Посетена 65 пътиПубликувана в 13:46 на 21 Януари 2026
Обща информация
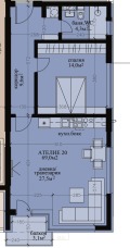
Квадратура85 m2
Етаж5-ти
Допълнителна информация
МД Естейт има удоволствието да Ви представи двустаен апартамент за продажба в кв. Студентски град. Разположен е на пети етаж. Общата площ на апартамента е 85 кв. м. , чистата площ е 69 кв. м. .Намира се на изключително комуникативно място, в близост до супермаркети, градски транспорт и заведения.
Има възможност за закупуване на подземен гараж на цена от 40 000 Евро.
За повече информация и огледи:
0888 332 211 - Виктория Герчева
0876 555 460 - Гергана Методиева
Особености
Асансьор • С гараж • Видео наблюдение • Контрол на достъпа • Саниран • Тухла








