Продава 3-СТАЕН, град Варна, Възраждане 2 ID 67229576

180 000 €352 049.40 лв.Не се начислява ДДС

Агенция

ХОУМ ПЛЕЙС, град Варна
ХОУМ ПЛЕЙСград Варна Железни Врата 6
Посетена 4 пътиПубликувана в 16:13 на 10 Октомври 2025

Обща информация

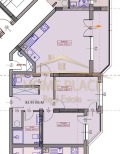
Квадратура98 m2
Етаж12-ти

Допълнителна информация

Агенция Хоум Плейс Ви предлага за продажба тристаен апартамент пред АКТ 15 в района на Възраждане2.

-Обща площ 98. 10
-Чиста площ 82. 95
-Етаж 12 с асансьор
-Изложение - изток
Разпределение: Дневна с кухненски бокс, две спалня, баня с тоалетна, отделно тоалетна, перално, коридор и тераса.

Предлагаме и още три двустайни и един тристайни апартамент в сградата.

За повече информация се свържете с нас на посочения телефон и цитирайте код:
КОД НА ОБЯВА: 29827
HOME PLACE - Ние работим за Вас!

Особености

Асансьор • Контрол на достъпа • Тухла

Страница на обявата

Агенция

ХОУМ ПЛЕЙС, град Варна
ХОУМ ПЛЕЙСград Варна Железни Врата 6

Споделяне

Преглeд на обявите по населени места: