Брокер
Обща информация
Допълнителна информация
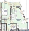
Агенция DOMI LUXE предлага за продажба просторен двустаен южен апартамент( 79 кв. м) в нова бутикова жилищна сграда с АКТ 14, разположена в кв. Погреби, гр. Варна.
Имотът се намира в най-предпочитаната и комуникативна част на квартала, в непосредствена близост до квартални магазини, салон за красота, детски клуб, ресторант и кафене.
Сградата е бутиков проект на шест етажа с модерна визия и съвременна архитектура. Достъпът е контролиран с чип система, което гарантира спокойствие и сигурност за живущите.
Предимства на сградата:
Само по 4 апартамента на етаж
Нисък процент общи части
Без такса поддръжка
Безшумен хидравличен асансьор
Луксозно завършени общи части
Апартаментът се издава по БДС, което дава възможност за довършване според вкуса на новия собственик.
Строителство и материали:
Висок клас тухли от 100% естествен материал
5-камерна PVC дограма
Стъклопакет с нискоенергийно, всесезонно ENERGY стъкло с аргон
10 см външна топлоизолация за висока енергийна ефективност
Без използване на гипсокартон
Сградата се строи с подбрани материали и съвременни технологии, което гарантира светло, топло жилище и ниски месечни разходи.
Към имота има възможност за закупуване на подземен закрит гараж на цена 30 000 .
Очаквано завършване на сградата: 2026 г.
Агенция DOMI LUXE съдейства още за:
отпускане на кредити при най-добри условия;
обстойна юридическа проверка на имота;
изготвя всички необходими документи за сделка;
За повече информация и организиране на огледи не се колебайте да се свържете с нас, като цитирате КОД: 12260
СМЕНИ АДРЕСА с нас, докато другите все още търсят!


