Обща информация
Допълнителна информация
✔ Възможност за схема на плащане - 10/90! ✔ Светла конструктивна височина на помещенията 2. 70м ✔ Награда за Луксозен Пространствен дизайн ✔ Доказан строител! ✔ Гарантирана цена до Акт 16! ✔ Разсрочени схеми на плащане!
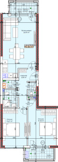
➡ Имотът се състои от антре, баня с тоалетна, отделно тоалетна, склад/перално помещение, 2 спални, дневна с кухня и трапезария, 2 тераси и е с обща площ от 109, 02 кв. м.
✔ Локация: Сградата се се намира в началото на квартал Тракия, на пешеходно разстояние от Парк Лаута .
На 200м от ЦДГ Еделвайс ,
На 350м от Детски ясла Слънчев рай
На 500м от ДГ Кремена ,
На 550м от магазин Лидъл
На 650м от Средно училище Черноризец Храбър
На 800м от Средно училище Димитър Матевски
На 900м от магазин Кауфланд
На 900м от магазин Метро
✔ Предимства:
Дворното пространство е 13 700 м² , красиво озеленено, с места за отдих, модерни детски площадки и стрийт фитнес. Луксозни общи части, с безупречна поддръжка, контрол на достъп, жива охрана, както и видеонаблюдение 24/7, ще допринасят за комфорта и спокойствието на живущите в комплекса.
✔ Технически характеристики:
- стени и тавани - гипсова мазилка;
- под - циментова замазка;
- височина (светла част) на жилищни помещения - 2, 60м. (Светлата конструктивна височина е 2, 70м);
- светла височина на мокри помещения - 2, 55 м;
- входни врати на апартаменти - блиндирани;
- дограма - ПВЦ с троен стъклопакет;
- ел. инсталации - монтирано ел. табло, ел. инсталация на фасунги, контакти и ключове, електромер;
- ВиК мрежа - монтиран водомер, ВиК инсталация, на тапа;
- външна топлоизолация - 10см вата;
- хидро- и топлоизолация на покрив - хидроизолация - газопламъчна два пласта, топлоизолация - 12см XPS;
- разводки за климатик;
✔ Общи части:
- парапети - метални или алуминиеви по стълбища и етажни площадки, шумо- и топлоизолиращи междуетажни врати, добре осветени стълбищни клетки с гранитни или мраморни стъпала,
- луксозни фоайета и коридори.
- луксозни безшумни бързи асансьори
Изби:
- стени и тавани - варо-циментова мазилка;
- под - шлайфан бетон;
- врати - метални.
Гаражи:
- стени и тавани - гипсова мазилка;
- под - шлайфан бетон;
- врати - секционни гаражни врати.
Магазини:
- стени - гипсова мазилка;
- тавани - бетон;
- за мокри помещения стени и тавани - варо-циментова мазилка;
- под - циментова замазка;
- височина (светла част) - (Светла конструктивна височина - 4, 30м);
- светла височина на мокри помещения - 4, 15 м;
- дограма - алуминиева дограма, включително врата към помещението;
- ел. инсталации - монтирано ел. табло, ел. инсталация и електромер;
- ВиК мрежа - монтирани водомери, ВиК инсталация, на тапа;
- външна топлоизолация - 10см
- разводки за климатик.
✔ Паркинг: Паркирането е обезпечено на 100 % с гаражи и паркоместа,
➡ Alpha Real Estate, специализиран посредник на водещите строителни фирми, член на Националната браншова организация НСНИ. За още предложения ново строителство в гр. Пловдив посетете нашия сайт: https://alphaestate.bg
Реф. 3250

