Продава 1-СТАЕН, град София, Малинова долина ID 67348214
100 056 €195 692.53 лв.Цената е с включено ДДС
Брокер
Е.Личен телефон: 0882660998, 0886067888
Посетена 38 пътиПубликувана в 18:05 на 25 Ноември 2025
Обща информация
Квадратура42 m2
Етаж2-ри
ТEЦДА
Допълнителна информация
Студио/Ателие
Номер на обявата в агенцията 19248.
С АКТ 15!!!! АКТ 16 - МЕСЕЦ ДЕКЕМВРИ 2025Г.
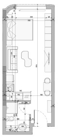
Предлагаме студио/ателие с обща площ 42 кв. м, състоящо се от:
Преддверие
Дневна с кухня и трапезария и спален кът
Баня с тоалетна
Отоплението е на ТЕЦ и климатик. Сградата е с взет акт 15. Акт 16 до края на годината.
Луксозни общи части , озеленен двор.
За повече информация или за организиране на оглед, моля свържете се с нас на тел. 0885706434
Studio/Atelier
We are pleased to offer a studio/atelier with a total area of 40 sq. m, consisting of:
Entrance hall
Living room with kitchen and dining area
Bathroom with toilet
For more details or to schedule a viewing, please contact us.
Offer 19248, tel. 0885706434
Особености
Асансьор • Видео наблюдение • Контрол на достъпа • В затворен комплекс • Тухла
Страница на обявата
Брокер
Е.Личен телефон: 0882660998, 0886067888












