Посетена 19 пътиПубликувана в 13:44 на 03 Октомври 2025
Обща информация
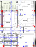
Квадратура85 m2
Допълнителна информация
Предлагаме ви двустаен апартамент в новопостроена луксозна жилищна сграда, изпълнена с висок клас строителни материали, по всички изискванията на съвременните технологи. Въведена в екплоатация 2025г.
Без компромисно качество.
Апартаментът е разположен на партерен жилищен етаж с площ от 85 кв. м. и тераса 12кв. м състои се от дневен тракт, спалня, баня и таолетна и килер. Жилището е завършено изцяло с обзаведена и оборудвана кухня.
Монтирани са висок клас подови климатици. Луксозни общи части с видионаблюдение.
Имота е ситуиран в близост до р. Дунав, на тихо и спокойно место.
Цена 2100 000евро без ДДС. БЕЗ КОМИСИОН ПРИ ПОКУПКА.
Особености
Асансьор • Обзаведен • Видео наблюдение • Контрол на достъпа • Саниран • Тухла

