Продава 2-СТАЕН, град София, Манастирски ливади ID 69552528
172 250 €336 891.72 лв.Не се начислява ДДС
Брокер
ОфисЛичен телефон: 0899500900
Посетена 277 пътиПубликувана в 13:59 на 08 Април 2026
Обща информация
Квадратура65 m2
Етаж4-ти
ГАЗНЕ
ТEЦНЕ
Допълнителна информация
❗ Революшън Естейт Ви представя двустаен апартамент в затворен жилищен комплекс на етап СТРОЕЖ в ж. к. Манастирски ливади - изток. ❗
🏡 Локализиран е в най-южната част на квартала, с бърз достъп до Околовръстен път. Имотът е част от затворен зелен комплекс с контролиран достъп и две нива подземни паркоместа.
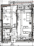
🔷 Имотът е разположен на 4-ти етаж от общо 6.
🔷 Площ: РЗП 65 кв. м. ЗП 54. 61 кв. м.
🔷 Изложение: Изток.
🔷 Разпределение: входно антре, хол с кухненски бокс, спалня, баня с тоалетна, тераса и склад.
🔷 Отопление: ток.
🔷 Степен на завършеност: В СТРОЕЖ.
🔷 Очаквано завършване: 2027г,
📞 За повече информация не се колебайте да се свържете с нас и да цитирате референтен номер: ID: 2091316.
Особености
Асансьор • С паркинг • Контрол на достъпа • В затворен комплекс • Тухла
Страница на обявата
Брокер
ОфисЛичен телефон: 0899500900














